Comment relier deux appartements
Un couple vient de trouver avec une problématique. Ils viennent d’acquérir ce magnifique 3 pièces de 71 m² dans un immeuble Art Déco classé dans la ville balnéaire de Beaulieu sur Mer qui a de superbes hauteurs sous plafond de presque 4 m.
Tout est entièrement à refaire mais ils veulent tout de même conserver le charme d’époque avec le parquet en bâtons rompus en chêne centenaire et les moulures magnifique. La ligne de conduite est claire: faire du neuf avec de le charme de l’ancien.
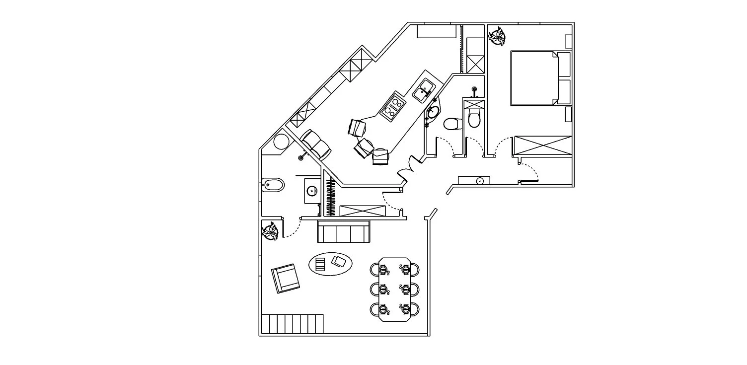
L’appartement fait un angle et a donc la forme “en éventail” avec une cuisine et une salle de bain pas du tout fonctionnelles ni pratiques à cause d’un couloir pour y accéder. Mes clients souhaitent une deuxième salle de bain et un deuxième toilette. Ils aiment recevoir et souhaite une grande cuisine avec beaucoup de rangements, ouverte avec un îlot.
Je prends les mesure, je dessine les plans et je soumets donc mon nouveau plan d’aménagement. Le couloir qui mène à la salle de bain est transformé en dressing. La cuisine actuelle est coupée en 2 pour pouvoir accueillir la deuxième salle d’eau avec un toilette intégré et relié à celui déjà présent. Le mur de la cuisine est ouvert sur la pièce centrale et la cuisine est dessinée avec la présence d’un demi îlot dont le plan de travail est fait sur-mesure avec un coin repas d’une forme octogonale pour reprendre les formes de la pièce. Le coin buanderie est installée dans un placard à la place de l’ancien évier de la cuisine et sera fermé par des portes coulissantes vitrées. La climatisation réversible est installée dans le faux plafond du couloir et dessert la chambre, la cuisine et le salon.
Les travaux ont commencé et l’opportunité d’acquérir l’appartement du demi sous-sol se présente. Il s’agit du même appartement mais un demi étage plus bas, exactement la même forme. Ils me consultent et après vérification et plusieurs avis de professionnels structurels, je décide de l’emplacement possible du nouvel escalier qui reliera les 2 espaces.
Ils font donc l’acquisition de cet appartement et je me penche sur cette mission complémentaire. J’ouvre l’espace afin d’intégrer un coin bureau, un coin sport et un deuxième salon. La pièce principale est transformée en chambre d’amis et dans l’un des placards je crée une douche avec un coin lavabo. La pièce du fond servira de cave à vin et de stockage. La cuisine abritera la buanderie et des rangements.
Avec l’aide d’un spécialiste des escaliers, je dessine le nouvel escalier et des professionnels ouvrent la trémie tout en renforçant la structure.
Ma principale préoccupation est de rendre cet espace chaleureux et accueillant malgré des fenêtre assez petites et peu de luminosité. Un carrelage couleur crème est posé à la place de l’ancien et le parquet en chêne est poncé. Je mise beaucoup sur la décoration avec la présence de grands miroirs qui vont refléter même la plus petite lumière. Mes clients optent pour une décoration bord de mer afin de donner cette impression d’espace et d’évasion.
Mes compétences techniques et ma capacité à trouver des solutions innovantes rapidement ont permis de transformer ces 2 appartements en un magnifique duplex très agréable que mes clients sont fiers de montrer à leur famille et amis!
RDC AVANT
RDC APRES

